works

  • mikiya_3_06
  • mikiya_3_07
  • mikiya_3_08
  • mikiya_3_09
  • mikiya_3_04
  • mikiya_3_05
  • mikiya_3_11
  • mikiya_3_12
  • mikiya_3_10
  • mikiya_3_13
  • mikiya_3_14

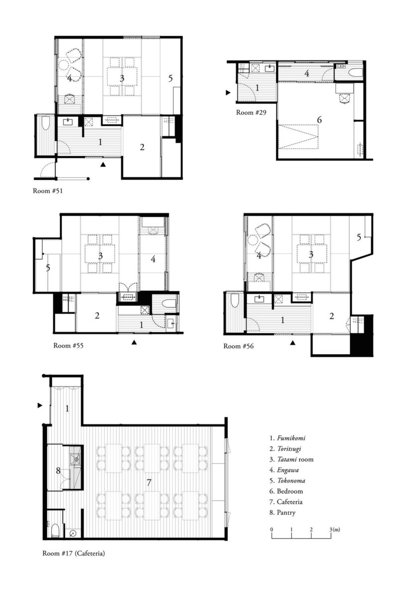
三木屋旅館改修計画 三期工事

兵庫は城崎温泉に佇み、志賀直哉ゆかりの宿としても知られる創業300年の日本旅館「三木屋」。国の登録有形文化財にも指定され、その木造建屋の随所に歴史ある趣を感じることが出来る。しかし一方で老朽化を避けられない部分もあり、宿では2013年より少しずつ改修計画を開始。施主は全体を通して、全面的なリニューアルというよりも既存の趣や建築当時の思考を活かした「更新作業」として改修を位置づけており、このプロジェクトではその考えに沿って、内湯、特別室、 客室、手洗、大広間などを段階的に改修している。

第三期工事では大広間(食堂)や共用の手洗のほか、一部客室を改修。まず宴会場としては使われなくなっていた大広間を作り変え、既存の畳敷をフローリングへと一新して食堂として機能するように整えた。また第一期工事の内湯の改修同様、既存のアルミサッシの開口部を木製建具の大開口に変更し、庭を眺めながら食事ができる場所にした。また客室では、元々のしつらえを残しながら部分的に部材を再利用し、既存の空間に馴染ませながら素材の選定を行った。どこを改修したのか一見判別しにくいが、徐々に更新作業は進められていく。それぐらい新旧の境界を曖昧に、既存の延長上にある三木屋らしさを目指している。

第一期工事:内湯(つつじの湯)改修
第二期工事:50号特別室改修
第四期工事:22号特別室改修
第四期工事:貸切風呂(来日の湯、二見の湯)改修

クライアント:三木屋
計画種別:インテリア改修
用途:旅館
期間:2017年11月~2018年7月
計画地:兵庫県豊岡市城崎湯島
設計:ケース・リアル 二俣公一 下平康一
施工:川嶋建設
家具製作・コーディネート:E&Y
撮影:水崎浩志

  • C-56号室 01_平面図_簡略 [更新済み]
  • plan