works

  • kyoto_s_residence_01
  • kyoto_s_residence_02
  • kyoto_s_residence_03
  • kyoto_s_residence_04
  • kyoto_s_residence_05
  • kyoto_s_residence_06
  • kyoto_s_residence_07
  • kyoto_s_residence_09
  • kyoto_s_residence_08
  • kyoto_s_residence_10
  • kyoto_s_residence_11
  • kyoto_s_residence_12
  • kyoto_s_residence_13
  • kyoto_s_residence_14
  • kyoto_s_residence_15
  • kyoto_s_residence_16
  • kyoto_s_residence_17
  • kyoto_s_residence_18

RESIDENCE S

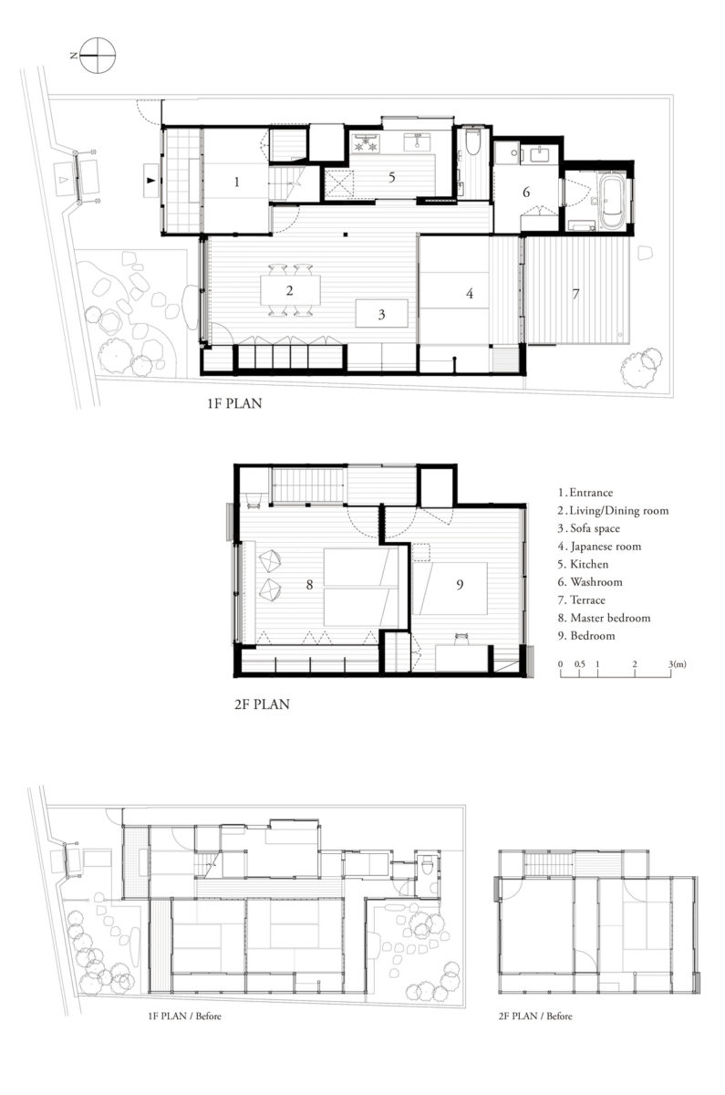
A renovation project of a traditional Kyoto townhouse over 80 years old. The project site was located in a dense but quite residential area surrounded by old and traditional townhouses, with the Kamo River flowing nearby.The building was relatively compact, a two-story wooden structure, with two smaller gardens in the front and back of the structure. Since the building was constructed by a shrine carpenter at the time of its original construction, quality materials were used for the frame, thus the building was in good condition for its age. Our plan was to improve and renovate the basic performance of the house (insulation, storage, water functions, etc.), while considering the appropriate way to treat the two gardens and to integrate the old and new. Therefore, the first step was to include the porch facing each garden as a room on the first floor. The corridor running between the rooms and the water area was also designed to be incorporated into the living and dining areas to secure as large an area as possible. In addition, a Japanese-style room, which was requested by the client, was planned on the south side of the house, utilizing the original tokonoma (alcove). The space between the living room and the Japanese-style room can be opened up with the use of fixtures, and a new terrace and Yukimi-shoji sliding doors were installed on the garden side in order to maintain the continuity from the north garden to the south. The second floor was also designed to maximize the living area by eliminating the corridors and verandas as much as possible. The staircase, which had been surrounded by walls leading to a dark feeling, was replaced with glass, and together with the closet-turned-desk space, this space became a place where the old and the new mixed together. The ceiling of the second floor was dismantled so that the roof structure, which was in good condition, would be visible. The aim of this project was to create a residence with a feeling of spaciousness by making use of the advantages of the existing Japanese house while updating its functions.

Type of Project: Renovation
Use: House
Period: Jun 2020 – Mar 2021
Floor Area: 118.19m2
Location: Kyoto, Japan
Design: Koichi Futatsumata, Koichi Shimohira(CASE-REAL)
Construction: Hitomi building firm
Lighting Plan: Tatsuki Nakamura(BRANCH LIGHTING DESIGN)
Photo: Hiroshi Mizusaki, N.T.archives

  • S邸