works

  • k_atelier_01
  • k_atelier_03
  • k_atelier_02
  • k_atelier_04
  • k_atelier_06_r
  • k_atelier_05
  • k_atelier_08
  • k_atelier_10_2
  • k_atelier_09
  • k_atelier_14
  • k_atelier_11
  • k_atelier_13
  • k_atelier_15

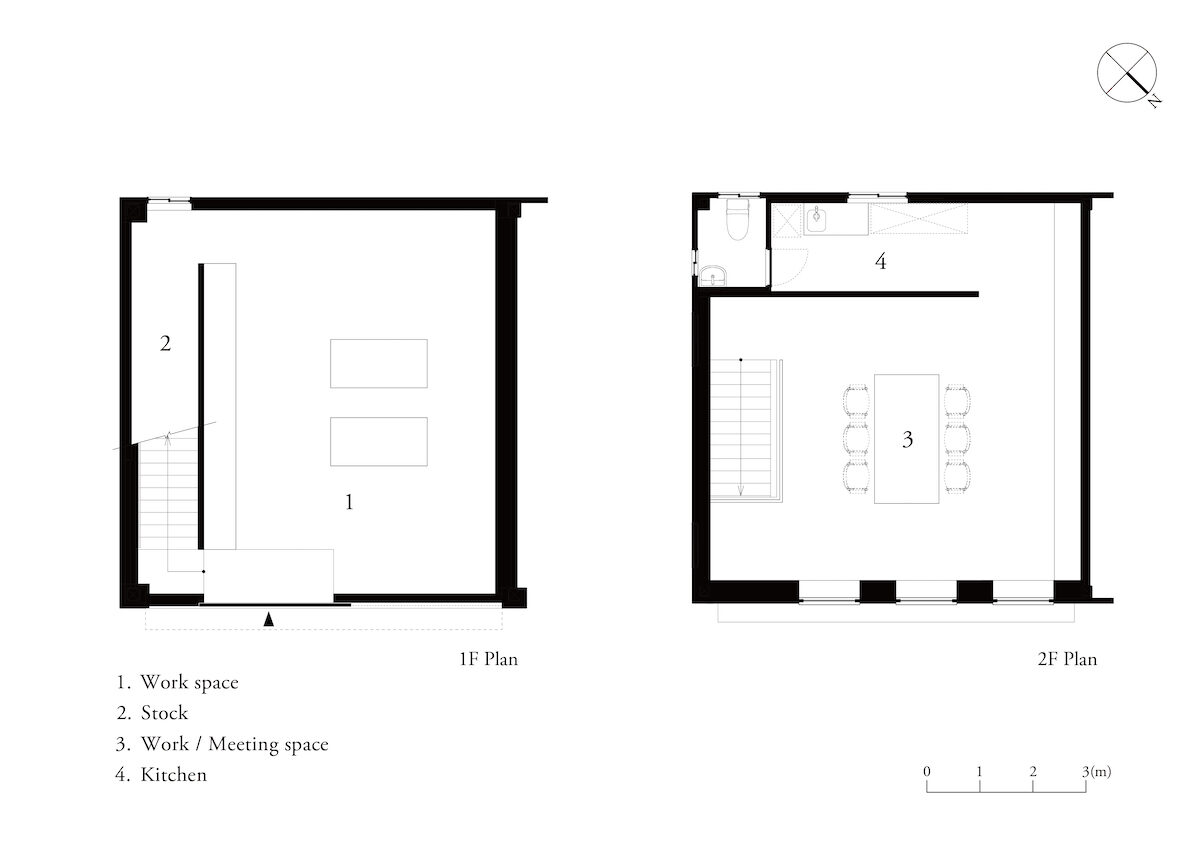
Kアトリエ

川沿いにある2階建ての建物の一部を、美術家のためのアトリエとして改修する計画。鉄骨造の事務所向けのシンプルな建物を、1階はメインの製作スペースに、2階はアトリエ兼ミーティングスペースとして改修を行なった。まず、アルミサッシのガラス戸が連続していた既存ファサードは、作品の搬出入のために大きな一枚引き戸に変更。高さのあるガルバリウム鋼板貼の引き戸を作り付け、照明やポスト、庇などの外部パーツと色味を揃えた。また室内は、壁や手摺で閉鎖的な印象となっていた階段室の壁を撤去。同時に、収納や水回りなどの機能を階段と一体的に計画し、全体をシンプルな空間とている。そして1階にはノックダウン式のテーブルをオリジナルで製作し、よりフレキシブルな使い方を想定した。一方、窓から川沿いの景色を眺められる2階は既存のフラットな天井を解体して、屋根の勾配を活かした傾斜天井に変更。あえて窓面の壁に厚みを持たせつつ、窓側に向かって登るように天井に傾斜をつけることで、景色を強調しながら開放感を出した。

計画種別:内装設計
用途:アトリエ
計画期間:2023年3月~2023年8月
計画面積:107.84平米
計画地:福岡県福岡市
設計:ケース・リアル 二俣公一 久保山実暉
施工:オブ
写真:水崎浩志

  • k_atelier_d
  • k_atelier_before