works

  • suzukake_honten_1
  • suzukake_honten_2
  • suzukake_honten_3
  • suzukake_honten_4
  • suzukake_honten_5
  • suzukake_honten_6
  • suzukake_honten_7
  • suzukake_honten_8
  • suzukake_honten_9
  • suzukake_honten_10

鈴懸本店

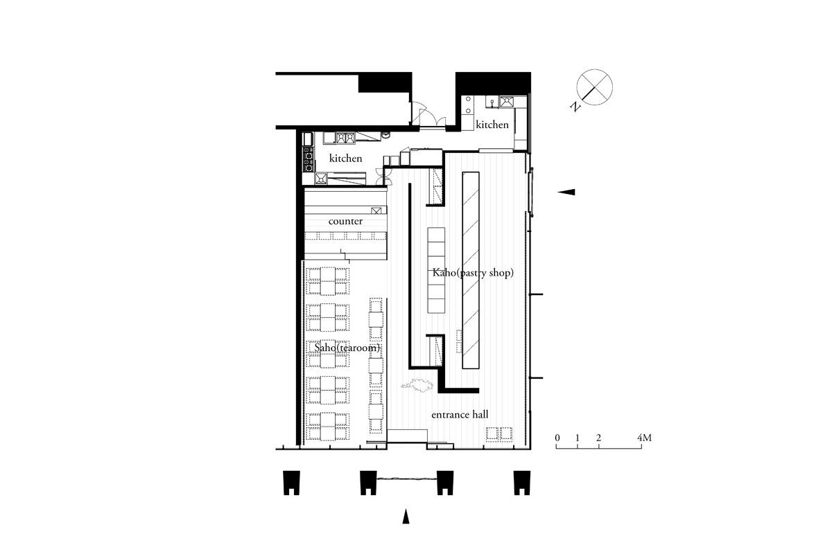
静寂に包まれる漆黒の菓舗・・・歴史ある商人の町、福岡市博多区上川端町での和菓子屋の計画。菓舗と茶舗を有するこの和菓子ブランドの旗艦店である。この 店舗にとって菓子を扱う場所こそが最も神聖な場所であるという思想の元、ここでは路面店ながらも菓舗は敢えてメインストリートに接することなく配置され、その雑踏から独立させている。また、菓子のディスプレーケースはその半分以上が宙に浮く長さ9mもの一本のみで、そこに採用した素材やディテール、また背景となる壁面全てを黒漆喰磨きとし真っ黒な無の存在として扱った点などこれら全ては無垢で素朴な菓子の存在を際立てるための配慮である。対照的に茶舗は通りからも容易に内部が認識出来るオープンな環境とし、この茶舗の為にオリジナル制作された家具が並ぶ。エントランスは、風合いある五色の暖簾と重厚感ある本朱の漆看板によって艶やかに彩られ、その先にあるものへの期待を象徴する存在とした。

クライアント:鈴懸
計画種別:インテリアデザイン
用途:和菓子店
期間:2007年8月~2008年7月
計画面積:163.2平米
計画地:福岡県福岡市博多区

設計:ケース・リアル 二俣公一 下平康一
施工:オブ
照明計画:モデュレックス福岡
家具製作:E&Y
撮影:水崎浩志

  • 01_•½–ʐ}