works

  • muveil_4
  • muveil_1
  • muveil_2
  • muveil_5
  • muveil_8
  • muveil_7
  • muveil_9
  • muveil_6
  • muveil_3
  • muveil_10

GALLERY MUVEIL

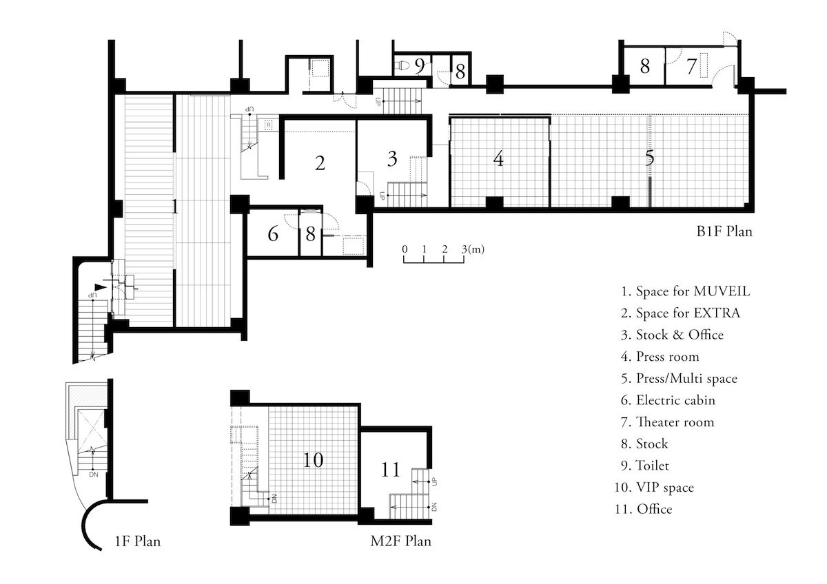
都心にあることを感じさせないほど奥深く複雑で廃墟のような状態だった地下空間を利用しての ショップデザインである。ここでは元々存在する複雑に入り組んだ幾つもの空間を、適度な操作のみで肯定的に再利用することで、ファッションブランド MUVEILがこれから表現してゆく多様な世界観をそのまま象徴する器として役立てることを考えた。ファサードもネオンによるサインと植栽を施したのみで ほぼ既存のままである。最も深い場所で30m以上も奥に空間が続く店内には、ショップ、ギャラリー、ラウンジ、プレスルーム、映写室など様々なスペースが 存在する。そして二つのメインスペースには可動する巨大な壁を設えており、これらのスペースを都度必要な環境へと変化させることが出来るよう配慮してい る。この空間は竣工以降もブランドデザイナーと多彩なコラボレーターによる様々な取り組みが予定されており、MUVEILの旗艦店でありながら名前に [GALLERY]とあるように固着しない彼らの新たな表現を試みるためのホワイトキューブのような空間とも捉え、設計している。

クライアント:FRIENDS
計画種別:インテリアデザイン
用途:ブティック
期間:2012年5月~2012年9月
計画面積:297.8平米
計画地:東京都港区南青山
設計:ケース・リアル 二俣公一 有川靖
施工:ZERO
照明計画:BRANCH LIGHTING DESIGN 中村達基
撮影:ナカサ&パートナーズ 下川大輔

  • muveil_d