works

  • yoron_12
  • yoron_15
  • yoron_3
  • yoron_1
  • yoron_2
  • yoron_4
  • yoron_5
  • yoron_7
  • yoron_8
  • yoron_9
  • yoron_10
  • yoron_6
  • yoron_11
  • yoron_17
  • yoron_13

与論の別邸

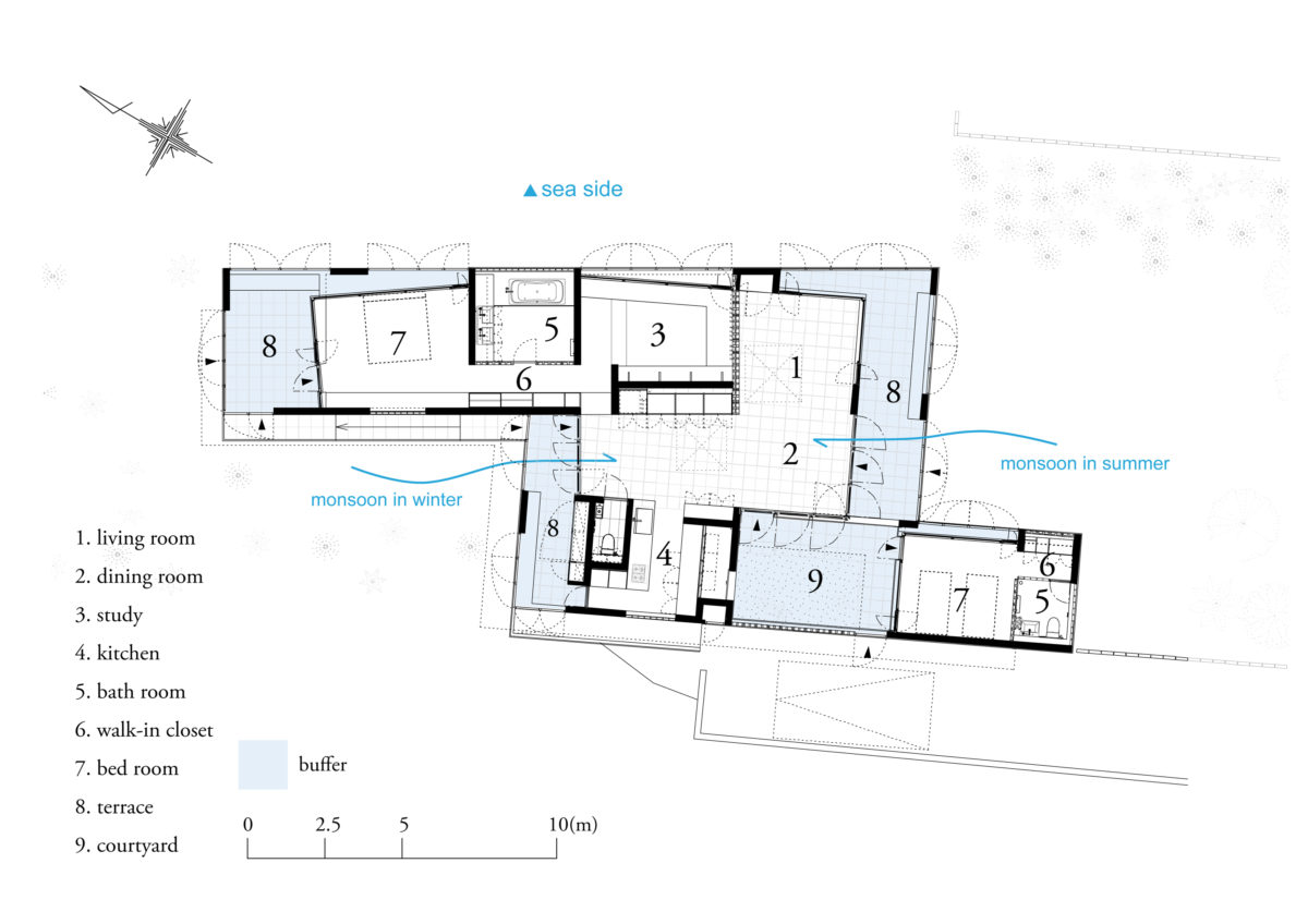
サンゴ礁の隆起によって出来た島、与論島での別荘の計画。鹿児島県最南端に位置するこの島は、その周囲をエメラルドグリーンの美しい海に囲まれており、今回の敷地からもその絶景を眺めることが出来る。一方で、台風の暴風雨、強い日差し、塩害といった島特有の厳しい気候にさらされることもあり、室内をこういった自然環境から守りながらも、通風や採光、眺望を確保するという、一見矛盾するような条件を満たす必要があった。

景観を考慮し、地に這うように低く抑えられた建物のボリュームは、景色を十分に楽しむことが出来るよう主室を海側に、その他の機能を陸側に配置している。そして2つのボリュームの間に出来た不定形な広い空間をメインスペースとして、ここをこの土地の季節風が抜けてゆくように計画した。主要な居室には気軽に外に出られるよう庇を伸ばし、その先端にメッシュ状の建具を設けている。これにより居室の周りには小さないくつかのバッファゾーンができ、飛来物から室内を守りつつも風や視線を遮ることのない、適度な室内環境を確保している。このメッシュ形状の建具は「花ブロック」と呼ばれる沖縄発祥の建材から着想を得たもので、その基本モジュールにならって決められた建具のグリッドパターンによって、より強固な外観イメージをつくることが可能になった。RCの躯体は表面を敢えてハンマートン加工で荒らし、また内部にも表情ある自然材料を用いることで、現地の風土へ馴染んでいくことを目指した。

計画種別:新築
用途:住宅
期間:2014年3月~2016年2月
構造:RC造
規模:地上1階
建築面積:187.2平米
延床面積:138.5平米
計画地:鹿児島県大島郡与論町
設計:ケース・リアル 二俣公一 片田友樹(ambient place/パートナー)
設計協力・施工:政建設
構造設計:オーノJAPAN 大野博史
照明計画:モデュレックス福岡 佐藤政章
家具製作・コーディネート:E&Y
撮影:水崎浩志

  • yoron_d