works

  • phantom_1
  • phantom_2
  • phantom_3
  • phantom_4
  • phantom_5
  • phantom_6
  • phantom_7
  • phantom_8
  • phantom_9

PHANTOM

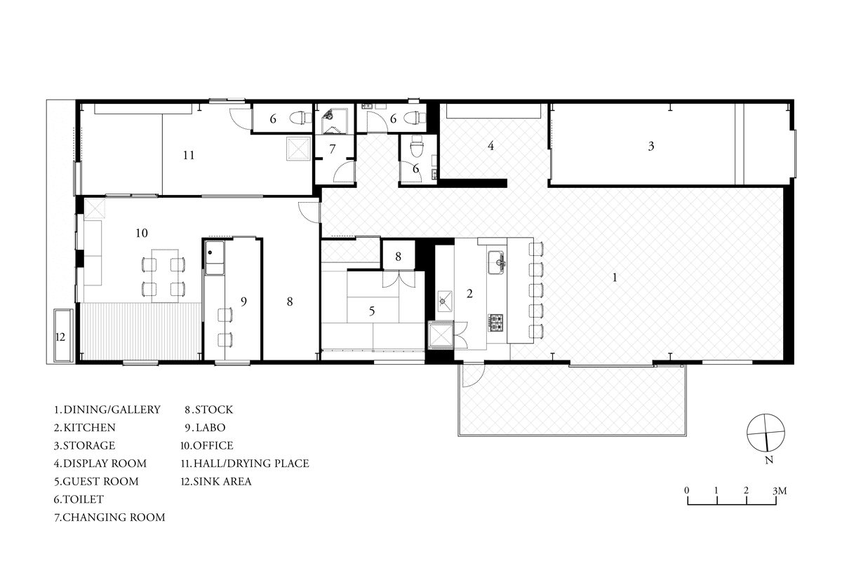
長閑な田畑が広がる福岡県南部のうきは市。そこを悠然と流れる筑後川の畔で養豚を営む、畜産家のためのスタジオの計画である。建物は倉庫と化していた旧い豚舎を改築したものである。この環境下では、闇雲なイメージ転換をはかるのではなく、出来るだけ在りのままの姿=豚舎としての姿をデザインすることに注視した。ファサードには周囲の豚舎でも使用されているガルバニウム鋼板を用い、結果この農場内に溶けるように佇んでいる。一方、内部は一新し、大きなオープンキッチンとダイニング、小さな展示室を備えるメインスペースは、オーナーに由縁する料理会や展覧会の会場として使用する。この他、来客の応接や小展示に使用するコンパクトな和室、生産管理を行うラボ、従業員の事務所やストックヤードなどが複合的に盛り込まれている。

計画種別:改築
用途:スタジオ
期間:2011年7月~2013年5月
構造:鉄骨造
規模:地上1階
床面積:216平米
計画地:福岡県うきは市吉井町
設計:ケース・リアル 二俣公一 有川靖
施工:時空建築工房
照明計画:モデュレックス
撮影:水崎浩志

  • Phantom Plan Clean