works

  • studio_m_01
  • studio_m_02
  • studio_m_03
  • studio_m_04
  • studio_m_05
  • studio_m_06
  • studio_m_07
  • studio_m_08
  • studio_m_09
  • studio_m_10
  • studio_m_11
  • studio_m_12
  • studio_m_13
  • studio_m_14
  • studio_m_15
  • studio_m_16
  • studio_m_17

STUDIO M

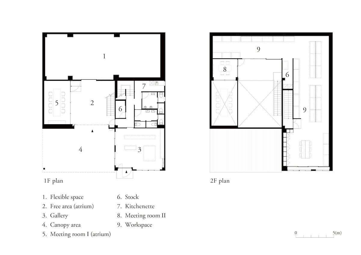
This project involved renovating a two-story steel-frame building—formerly used as a warehouse and office—into a new base for an entertainment studio rooted in visual arts and specializing in video planning and production. While updating the necessary functions, the design aimed to preserve and highlight the existing qualities of the space, such as its warehouse- and factory-like atmosphere. The most significant transformation was the partial removal of the second-floor slab, creating a double-height void. This opened up the area directly facing the entrance into an expansive free space, while the first-floor meeting area became a distinctive zone defined by the studio’s two-story height. For each of these double-height areas, original lighting fixtures were designed to respond to the spatial scale and character. These include studio-like spotlights with battens, and pendant lights that integrate linear LED tubes with downlights. Neon signage and vinyl curtains were also incorporated to shape a space that harmonizes with the studio’s creativity. While the first floor is designed for flexible uses—such as exhibitions or studio shoots—the second-floor workspace, which serves as the main production area, prioritizes functional performance including soundproofing and insulation. This creates a deliberate contrast between the rough, existing textures and the newly constructed, refined elements.

Client: MontBlanc Pictures
Type of Project: Interior
Use: Office&Studio
Period: Nov 2024 – Jul 2025
Floor Area: 411.65m2
Location: Fukuoka, Japan
Design: Koichi Futatsumata, Mitsuki Kuboyama(CASE-REAL)
Construction: Jikuu Kenchiku Koubou
Lighting Design: Tatsuki Nakamura (BRANCH LIGHTING DESIGN)
Manufacture of Neon Sign: PURPLE MAX
Photo: Hiroshi Mizusaki

  • モンブラン_平面図 2 [更新済み]